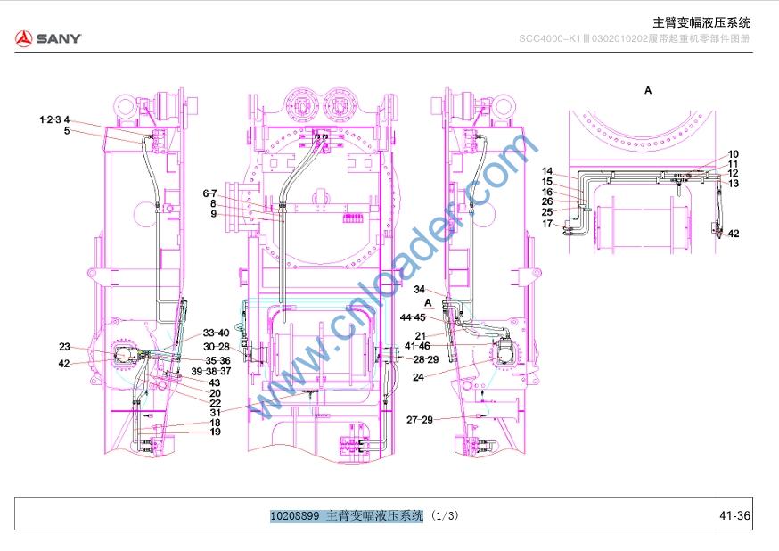
10208899 主臂变幅液压系统

1 B229900000333 split flange 4
2 A210204000462 screw M12×45GB70.1 10.9 level 16
3 B230101000215 O-ring 4
4 21002920 flange joint 4
5 B230103008119 hose 25)-1300Q/SY11 2
6 10208900 Pipe clamp Q400C.122(a).7.1 1
7 A210111000012 bolt M10×20GB5783 10.9 level 2
8 10208907 Steel pipe assembly 1
9 10208908 steel pipe assembly 1
10 21015334 pipe joint 2
11 21002990 pipe joint 8
12 10208909 steel pipe assembly 1
13 10208910 steel pipe assembly 1
14 10208911 Steel pipe assembly 1
15 10208912 Steel pipe assembly 1
16 10208913 Steel pipe assembly 1
17 B230103008120 hose 25)-800Q/SY110 2
18 10208905 steel pipe assembly 1
19 10208906 Steel pipe assembly 1
20 B230103008116 hose 25)-600Q/SY110 1
21 21003980 hose 4SH32-DKOS(25)-SFS90-750Q/SY1102 1
22 B230103008117 hose 25)-700Q/SY110 1
23 B220501000472 plunger motor 1
24 B220501000473 plunger motor 1
25 A229900002427 single pipe clamp 8
26 A229900002415 single pipe clamp 3
27 21002822 Pipe joint 1
28 A229900002895 pipe joint 2
29 A831511050000 hose Q/SY1102 1
30 B230103000626 hose Q/SY1102 1
31 A229900002812 Pipe joint 1
33 B230103007363 hose Q/SY1102 1
34 B230103005198 hose Q/SY1102 1
35 A229900005120 split flange 4
36 A210204000299 screw M14×50GB70.1 16
37 B230101000647 O-ring 37.69×3.53 4
38 21002922 Flange joint 2
39 21003067 pipe joint 2
40 10195269 damping joint 1
41 10088658 pipe joint 1
42 21011323 Pressure measuring joint 2
43 10308705 Pawl lock cylinder 1
44 60013636 hose)-1000-V180Q/S 1
45 21015724 Flange joint 1